Terreno T2+1 - Ilha da Madeira, Machico
                                240.000 €
                            
                         
                     
                 
                
                
             
         
        
        
        
     
         
        
            
                
                    
                    
                    
                    
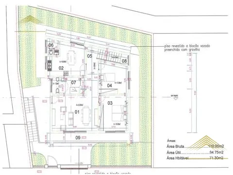
                    Lote com Projeto aprovado de Moradia T2 por realizar , com excelentes acabamentos e areas, obra por realizar em breve...
                 
             
            
                
    
        
            
                Tipo de imóvel
                Terreno
            
            
                Tipologia
                2 Quartos
            
            
                Objetivo
                Venda
            
            
                Estado
                Novo
            
            
                Preço
                240.000 €
            
            
                Ano Construção
                2018
            
            
                País
                Portugal
            
            
                Distrito
                Ilha da Madeira
            
            
                Concelho
                Machico
            
            
                Freguesia
                Água de Pena
            
            
                Zona
                N/D
            
         
     
             
         
        
     
    
    
    
    
        
            
                
                Características Gerais
            
            
    
    
         Divisões 
        
            
                
                    
                        | Divisões | Área | Pavimento | Paredes | Tectos | Observações |  | 
                
                
                    
                        |  | 
                
            
         
     
    
    
    
    
         
     
    
                 
            
                
                    
                
            
                 
            
     
                
             
            
            
                
                
                    O que é a pesquisa responsável
                    
                
                Esta pesquisa permite obter resultados mais ajustados à sua disponibilidade financeira.